岡山発! 独立系住宅アドバイザー&住宅情報誌編集部スタッフのブログです。
×
[PR]上記の広告は3ヶ月以上新規記事投稿のないブログに表示されています。新しい記事を書く事で広告が消えます。
こんにちわ、ツッキーです!

更新が滞っていました…すみません。。。
どうやら梅雨も明けそうな雰囲気で、
一気に暑くなってきましたね。
これでやっと庭の竹狩りを本格的に
進めれます(笑)
マイホーム8月号の記事、いかがでしたでしょうか?
我が家のプランを赤裸々に紹介しましたが。。。
本誌で詳しく語られなかったこと、
こだわりを紹介しておこうと思います。
あくまでも私のこだわりですので…。
賛同できるところだけ、参考にしてくださいね。

・トイレはリビングから離す
私は気にしぃなので、トイレで落ち着こうと
思うと、自分がトイレで出す「音」や「におい」を
気にしないで用が足せたほうが良いとして、
特に人が集まるリビングから離すことにしました。
・洗面を広くして、そこで着替えをすませれるように
洗面所に部屋着や寝巻きをおいて、外から帰ったり、
お風呂から出るときに、そこで全てが済ませられたら
良いと思ったものですから。
それに家事、主に洗濯ですね。洗濯をしたら、デッキに干す。
そして取り込んだ後、隣の家事室でたたんだり、アイロンしたりで
洗面所にしまう。こうすれば家事動線も最小限で済むので。
実際にできるかどうかは嫁次第ですが…(苦笑)
と、こんなこだわりがありました。
これも一部ですから、また更新していこうと思います。
…頑張れ自分(笑)
やはり具体的に生活する情景を思い浮かべながら
プランを決めていくことが大切です。
なので、設計を担当される方に、どのような
生活をしているか、どう生活したいか、
これを伝えることが重要です。
もちろん、今までの生活が変わるわけですから、
今までの生活スタイルがそのまま反映することは
難しいし、できないでしょう。
その代わりに、今までこうだったけど不便だったから
新しい家ではこうしたい! という風に希望を
持っておかないといけません。
家はカッコいいだけではダメです。
そこで生活する人、つまり自分が過ごしやすいように
なっていないと。
楽しいですよ、いままで不便だなぁと思っていたことを
思い通りにできるわけですから。
さて、また長くなってしまいました。
皆さんも自分のライフスタイルの理想像を
描いておきましょう。
それではこの辺で(笑)
更新が滞っていました…すみません。。。
どうやら梅雨も明けそうな雰囲気で、
一気に暑くなってきましたね。
これでやっと庭の竹狩りを本格的に
進めれます(笑)
マイホーム8月号の記事、いかがでしたでしょうか?
我が家のプランを赤裸々に紹介しましたが。。。
本誌で詳しく語られなかったこと、
こだわりを紹介しておこうと思います。
あくまでも私のこだわりですので…。
賛同できるところだけ、参考にしてくださいね。
・トイレはリビングから離す
私は気にしぃなので、トイレで落ち着こうと
思うと、自分がトイレで出す「音」や「におい」を
気にしないで用が足せたほうが良いとして、
特に人が集まるリビングから離すことにしました。
・洗面を広くして、そこで着替えをすませれるように
洗面所に部屋着や寝巻きをおいて、外から帰ったり、
お風呂から出るときに、そこで全てが済ませられたら
良いと思ったものですから。
それに家事、主に洗濯ですね。洗濯をしたら、デッキに干す。
そして取り込んだ後、隣の家事室でたたんだり、アイロンしたりで
洗面所にしまう。こうすれば家事動線も最小限で済むので。
実際にできるかどうかは嫁次第ですが…(苦笑)
と、こんなこだわりがありました。
これも一部ですから、また更新していこうと思います。
…頑張れ自分(笑)
やはり具体的に生活する情景を思い浮かべながら
プランを決めていくことが大切です。
なので、設計を担当される方に、どのような
生活をしているか、どう生活したいか、
これを伝えることが重要です。
もちろん、今までの生活が変わるわけですから、
今までの生活スタイルがそのまま反映することは
難しいし、できないでしょう。
その代わりに、今までこうだったけど不便だったから
新しい家ではこうしたい! という風に希望を
持っておかないといけません。
家はカッコいいだけではダメです。
そこで生活する人、つまり自分が過ごしやすいように
なっていないと。
楽しいですよ、いままで不便だなぁと思っていたことを
思い通りにできるわけですから。
さて、また長くなってしまいました。
皆さんも自分のライフスタイルの理想像を
描いておきましょう。
それではこの辺で(笑)
PR
先週末に岡山市中区賞田にある一級建築士事務所『㈱カーサ・カレラ』が設計・施工したお宅に取材に行ってきました。

写真はカーサ・カレラ本社(2010.6.29撮影)。左から2人目が同社の木口社長
何よりも印象的だったのがお施主さんの笑顔と、いい意味での饒舌さ。
「モデルルームなどいろいろ回ったけれど、ここまでとことんこだわってくれる人たちにはもう絶対出会えない!」と断言するお施主さん。家づくりを通じてカーサ・カレラに出会った喜びであふれていました。

その喜びのルーツはの一つはこの「ソファーの生地と赤い壁」。
…写真の画像(と撮った人の腕!?)が悪いので伝わりにくいとは思いますが。。。
(本物は『hABITER』の誌面でご確認ください)
お施主さんが一目ぼれした一枚の写真。
そこに写っていたソファー生地のオランダ人デザイナーを探す。
写真と同じ生地をイギリスから取り寄せ、
日本の家具職人さんにそれを使ったソファー模型を作ってもらう。
さらに、そのソファーに合う壁のペンキをイギリスから取り寄せる、
という「カーサ・カレラ」流のエピソード。
「‘異様な手間ヒマ’をかけてこちらが納得するまでとことん提案してくれる」
というお施主さんのこぼれる笑顔に、
カーサ・カレラとの家づくりがどれだけ楽しかったのかをひしひしと感じました。
ステップ・ハウスが主催する家づくり相談会に来られるお客さんの中に
たまにげっそりされているように見える方がいます。
「いろいろモデルルームを見に行っているけれど、分からなくなってきた」
「家づくりが進んでいるけれど、あれもダメ、これもダメ、と言われて楽しくない」
など、「家」という安くないお買い物をされるのに、楽しめないのは本当にもったいないと私は思います。
お施主さんにとって家づくりが楽しめる会社に出会っていただきたいです。
。。。あ、その出会いが「hABITER」や「マイホーム」だったら最高!(*゚ー゚*)ノジ

photo by KENJI GOTO
写真は「カーサ・カレラ」のモデルハウスにお邪魔した時、
スタッフみんなに専務が飲み物を出してくださった時のもの。
このグラスは、お施主さんがプレゼントしてくれたものなんだとか。
「Casa Carrera」の文字が入ってて、
「スガハラガラス」という千葉に工場がある会社のグラスだと
東京在住歴があるスタッフの一人が気が付きました。
私は恥ずかしながらこの会社を知らなかったのですが、インターネットで検索してみると、
「手づくりの可能性を追い求めている」なんてコピーが書いてある
まさに「hABITER」的ガラス工房だなぁと感動しました。
お施主さんから家のお礼に気持ちのこもったこだわりのプレゼントをいただけるってものすごく素敵っ!!
写真はカーサ・カレラ本社(2010.6.29撮影)。左から2人目が同社の木口社長
何よりも印象的だったのがお施主さんの笑顔と、いい意味での饒舌さ。
「モデルルームなどいろいろ回ったけれど、ここまでとことんこだわってくれる人たちにはもう絶対出会えない!」と断言するお施主さん。家づくりを通じてカーサ・カレラに出会った喜びであふれていました。
その喜びのルーツはの一つはこの「ソファーの生地と赤い壁」。
…写真の画像(と撮った人の腕!?)が悪いので伝わりにくいとは思いますが。。。
(本物は『hABITER』の誌面でご確認ください)
お施主さんが一目ぼれした一枚の写真。
そこに写っていたソファー生地のオランダ人デザイナーを探す。
写真と同じ生地をイギリスから取り寄せ、
日本の家具職人さんにそれを使ったソファー模型を作ってもらう。
さらに、そのソファーに合う壁のペンキをイギリスから取り寄せる、
という「カーサ・カレラ」流のエピソード。
「‘異様な手間ヒマ’をかけてこちらが納得するまでとことん提案してくれる」
というお施主さんのこぼれる笑顔に、
カーサ・カレラとの家づくりがどれだけ楽しかったのかをひしひしと感じました。
ステップ・ハウスが主催する家づくり相談会に来られるお客さんの中に
たまにげっそりされているように見える方がいます。
「いろいろモデルルームを見に行っているけれど、分からなくなってきた」
「家づくりが進んでいるけれど、あれもダメ、これもダメ、と言われて楽しくない」
など、「家」という安くないお買い物をされるのに、楽しめないのは本当にもったいないと私は思います。
お施主さんにとって家づくりが楽しめる会社に出会っていただきたいです。
。。。あ、その出会いが「hABITER」や「マイホーム」だったら最高!(*゚ー゚*)ノジ
photo by KENJI GOTO
写真は「カーサ・カレラ」のモデルハウスにお邪魔した時、
スタッフみんなに専務が飲み物を出してくださった時のもの。
このグラスは、お施主さんがプレゼントしてくれたものなんだとか。
「Casa Carrera」の文字が入ってて、
「スガハラガラス」という千葉に工場がある会社のグラスだと
東京在住歴があるスタッフの一人が気が付きました。
私は恥ずかしながらこの会社を知らなかったのですが、インターネットで検索してみると、
「手づくりの可能性を追い求めている」なんてコピーが書いてある
まさに「hABITER」的ガラス工房だなぁと感動しました。
お施主さんから家のお礼に気持ちのこもったこだわりのプレゼントをいただけるってものすごく素敵っ!!
建築士(そして岡山人も)1年生のノジです。
「住むだけでは満足しない一歩上質の家づくり」を取り上げる
雑誌『hABITER(アビテ)』が8月20日(金)に創刊されます!
『hABITER』は、建築技術はもちろんデザイン性にも定評のある岡山の企業を取材し、世界に誇れる匠の技や、こだわりの深いお宅などを紹介する雑誌です。
流行に媚びないこだわりを持つ家を垣間見ることが大好きなので、身近にいる素敵な建築プロフェッショナルの方々やワンランク上の趣ある家に出会える毎日はとってもHAPPY!
おいしい料理やワインのように生活を彩る『嗜好の家』づくり。。。
この感動を誌面を通じてこれから家を建てられる方々に少しでも届けることができたらと願っております。
「住むだけでは満足しない一歩上質の家づくり」を取り上げる
雑誌『hABITER(アビテ)』が8月20日(金)に創刊されます!
『hABITER』は、建築技術はもちろんデザイン性にも定評のある岡山の企業を取材し、世界に誇れる匠の技や、こだわりの深いお宅などを紹介する雑誌です。
流行に媚びないこだわりを持つ家を垣間見ることが大好きなので、身近にいる素敵な建築プロフェッショナルの方々やワンランク上の趣ある家に出会える毎日はとってもHAPPY!
おいしい料理やワインのように生活を彩る『嗜好の家』づくり。。。
この感動を誌面を通じてこれから家を建てられる方々に少しでも届けることができたらと願っております。
こんにちわ ツッキーです
先週末、コンベックスでのイベント、
「住まい夢フェア」に家族で行ってきました。
来場者は4000人を越えたそうで、
まだまだ岡山での新築も増えていくのでは?
と感じさせられました。
まぁ、まったくの休日モードだったので、
その時は子ども達の相手で手一杯だったのですが(汗)
うちの2人の息子達は無垢の木でつくった積み木を
一心不乱に積んでいったり、無垢フローリングの床の
上を走り回ったりでとても楽しそうだったので、
連れてきた甲斐がありました(嬉)
息子達は無垢の木が気に入ったようです。
今、建築中の家も、1階の床を杉の無垢フローリングに
しているので、新しい家も気に入ってくれそうだと
ひとりほくそ笑んでいました。
しかし、木は木でも……ウチの竹は何とかならんか~!

日曜日、やっと晴れたので思い切り竹を伐採しました。
おかげで日が差すようになりました…。
ものすごい量の竹が積まれ…。
工事の邪魔になりそうないきおいです(苦)
そろそろ庭をどのようにするか考えたいのですが、
この竹のせいでイメージができません。
木は好きなんですが、さすがにこれは…
まだまだ竹と格闘する日は続きそうです(苦笑)
先週末、コンベックスでのイベント、
「住まい夢フェア」に家族で行ってきました。
来場者は4000人を越えたそうで、
まだまだ岡山での新築も増えていくのでは?
と感じさせられました。
まぁ、まったくの休日モードだったので、
その時は子ども達の相手で手一杯だったのですが(汗)
うちの2人の息子達は無垢の木でつくった積み木を
一心不乱に積んでいったり、無垢フローリングの床の
上を走り回ったりでとても楽しそうだったので、
連れてきた甲斐がありました(嬉)
息子達は無垢の木が気に入ったようです。
今、建築中の家も、1階の床を杉の無垢フローリングに
しているので、新しい家も気に入ってくれそうだと
ひとりほくそ笑んでいました。
しかし、木は木でも……ウチの竹は何とかならんか~!
日曜日、やっと晴れたので思い切り竹を伐採しました。
おかげで日が差すようになりました…。
ものすごい量の竹が積まれ…。
工事の邪魔になりそうないきおいです(苦)
そろそろ庭をどのようにするか考えたいのですが、
この竹のせいでイメージができません。
木は好きなんですが、さすがにこれは…
まだまだ竹と格闘する日は続きそうです(苦笑)
カウンタースタッフOです。
本日も津山からはるばる
こちらのカウンターへご来場が
ありました。

お若いご夫婦とかわいい娘さんでしたが、
とても熱心にお話をさせていただきました。
こういう素晴らしい方を見ると
ついつい昔の自分と比べてしまいます。
…自分がこの歳のころは…、と。
ご夫婦の熱意に負けないよう
しっかりと対応させてもらいます!
土地はほぼ「ここだ」という所を
見つけているようでしたので、
予算や要望にあう工務店を紹介させて
頂きました。
家を建てるということは、「住みか」を
決めることでもあります。
土地選びは「出会い」に似たものがあります。
その時、行動することで「ここだ」という土地が、
見つかったり、見つからなかったりします。
「一期一会」なんですね。
工務店選びもそうですが、この「出会い」
というものは自分自身が行動して、
初めて出会えるものです。
お仕事お忙しい中、ご自身の意思で
ご来店頂いた、この「出会い」を
「出会えてよかった」
と思えるものにしていきたいです。
これからしっかりと対応させて
頂きますので!
夢を現実にする第1歩!
みなさんも、そろそろ家づくりを…、
と思われた方はぜひ「家づくりカウンター」へ
お気軽にお問い合わせください!
本日も津山からはるばる
こちらのカウンターへご来場が
ありました。
お若いご夫婦とかわいい娘さんでしたが、
とても熱心にお話をさせていただきました。
こういう素晴らしい方を見ると
ついつい昔の自分と比べてしまいます。
…自分がこの歳のころは…、と。
ご夫婦の熱意に負けないよう
しっかりと対応させてもらいます!
土地はほぼ「ここだ」という所を
見つけているようでしたので、
予算や要望にあう工務店を紹介させて
頂きました。
家を建てるということは、「住みか」を
決めることでもあります。
土地選びは「出会い」に似たものがあります。
その時、行動することで「ここだ」という土地が、
見つかったり、見つからなかったりします。
「一期一会」なんですね。
工務店選びもそうですが、この「出会い」
というものは自分自身が行動して、
初めて出会えるものです。
お仕事お忙しい中、ご自身の意思で
ご来店頂いた、この「出会い」を
「出会えてよかった」
と思えるものにしていきたいです。
これからしっかりと対応させて
頂きますので!
夢を現実にする第1歩!
みなさんも、そろそろ家づくりを…、
と思われた方はぜひ「家づくりカウンター」へ
お気軽にお問い合わせください!
こんにちわ ツッキーです

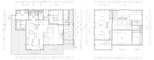
ただいま「ステップハウスマイホーム」にて
連載中、「我が家ができるまで」を
鋭意製作中です!
7月9日(金)発売の第2回目は
プランニングを大きく取り上げ、
我が家の間取りがどのようになったかを
紹介いたします!

↑うっすらヒントです。
いや~、細かくプランニングをしたもの
ですから、本誌に盛り込むのに苦労しました(汗)
こだわれば、こだわるだけ「いい家」ができる
というのが私の持論です。
今まで色々な人の家を取材させてもらいましたが、
こだわればこだわるだけ「満足度」が高まるので、
本人達にとって「いい家」になるということです。
ということでこだわりました(笑)
自分なりに最高に「いい家」になりましたよ。
…まだ完成していませんが(笑)
楽しんで家づくりができていると感じています。
これも大事なことです。
そんな家づくり、間取りがみなさんの
参考になればうれしく思います。
7月9日(金)発売のマイホーム、ぜひご覧ください。
7月9日(金)発売のマイホーム、ぜひご覧ください。
…大事なことなので2回言いました。
本が発行されたらまた言い足りなかったことを
ブログに載せますね~。
ただいま「ステップハウスマイホーム」にて
連載中、「我が家ができるまで」を
鋭意製作中です!
7月9日(金)発売の第2回目は
プランニングを大きく取り上げ、
我が家の間取りがどのようになったかを
紹介いたします!
↑うっすらヒントです。
いや~、細かくプランニングをしたもの
ですから、本誌に盛り込むのに苦労しました(汗)
こだわれば、こだわるだけ「いい家」ができる
というのが私の持論です。
今まで色々な人の家を取材させてもらいましたが、
こだわればこだわるだけ「満足度」が高まるので、
本人達にとって「いい家」になるということです。
ということでこだわりました(笑)
自分なりに最高に「いい家」になりましたよ。
…まだ完成していませんが(笑)
楽しんで家づくりができていると感じています。
これも大事なことです。
そんな家づくり、間取りがみなさんの
参考になればうれしく思います。
7月9日(金)発売のマイホーム、ぜひご覧ください。
7月9日(金)発売のマイホーム、ぜひご覧ください。
…大事なことなので2回言いました。
本が発行されたらまた言い足りなかったことを
ブログに載せますね~。
ステップハウス マイホーム
ホームページ:
ステップハウスとは:
ストーリーがある、岡山の住まい実現情報誌「ステップハウス マイホーム」、そして住まいの相談窓口「家づくりカウンター」(岡山市)。そのスタッフがお送りする、住まいに関するあれこれ情報ブログです。
瀬戸内にお住まいの方はもちろん、転勤やUターンの方、リタイア後に瀬戸内の海辺に住みたい方! 下記サイトもぜひご覧ください。メールはこちら。
●家づくりカウンター
●ステップハウス(中四国の住宅情報総合検索サイト)
●不動産売買アンサー「査定・売却、購入、相談の解決サイト」
●賃貸スタイル
●FM番組「ウェルカムマイホーム」
●お部屋探し応援blog岡山
●ステップハウス広島版blog
●ステップハウス香川版blog
●備後で建てる家blog
住宅相談カウンターとは?
特定のメーカーなどに属さない中立の立場で、住宅情報誌出版のノウハウとネットワークを活用して、ご希望に合う会社や商品を紹介する、新しいサービス。いわば、住まいのコンシェルジュです。
ステップハウス マイホームとは?
家づくりのノウハウから最新不動産情報まで。岡山でマイホームを実現するための月刊住宅情報誌です。詳しくはこちら。
瀬戸内にお住まいの方はもちろん、転勤やUターンの方、リタイア後に瀬戸内の海辺に住みたい方! 下記サイトもぜひご覧ください。メールはこちら。
●家づくりカウンター
●ステップハウス(中四国の住宅情報総合検索サイト)
●不動産売買アンサー「査定・売却、購入、相談の解決サイト」
●賃貸スタイル
●FM番組「ウェルカムマイホーム」
●お部屋探し応援blog岡山
●ステップハウス広島版blog
●ステップハウス香川版blog
●備後で建てる家blog
住宅相談カウンターとは?
特定のメーカーなどに属さない中立の立場で、住宅情報誌出版のノウハウとネットワークを活用して、ご希望に合う会社や商品を紹介する、新しいサービス。いわば、住まいのコンシェルジュです。
ステップハウス マイホームとは?
家づくりのノウハウから最新不動産情報まで。岡山でマイホームを実現するための月刊住宅情報誌です。詳しくはこちら。
カレンダー
| 02 | 2026/03 | 04 |
| S | M | T | W | T | F | S |
|---|---|---|---|---|---|---|
| 1 | 2 | 3 | 4 | 5 | 6 | 7 |
| 8 | 9 | 10 | 11 | 12 | 13 | 14 |
| 15 | 16 | 17 | 18 | 19 | 20 | 21 |
| 22 | 23 | 24 | 25 | 26 | 27 | 28 |
| 29 | 30 | 31 |
家づくり倶楽部 会員募集中
現在、または将来的にマイホーム実現を考えている方のための気軽な情報提供サービスです。家を建てる、分譲マンションや中古物件など住まい購入をお考えの方に、情報誌「ステップハウス マイホーム」や最新情報を毎月お届けします。ご登録・ご利用はもちろん無料です。
カテゴリー
最新記事
(06/11)
(06/09)
(06/04)
(06/02)
(06/01)
最新トラックバック
ブログ内検索
アクセス解析