岡山発! 独立系住宅アドバイザー&住宅情報誌編集部スタッフのブログです。
×
[PR]上記の広告は3ヶ月以上新規記事投稿のないブログに表示されています。新しい記事を書く事で広告が消えます。
次の事例をご覧下さい。

ひょっとして、お家が3軒連なってる?
通り沿いから見てみると…

真っ黒のモニュメント?アート美術館!?
これはウラベもオドロキました( ? _ ? )
なぜ、この設計デザインになったのか
答えはこちら!

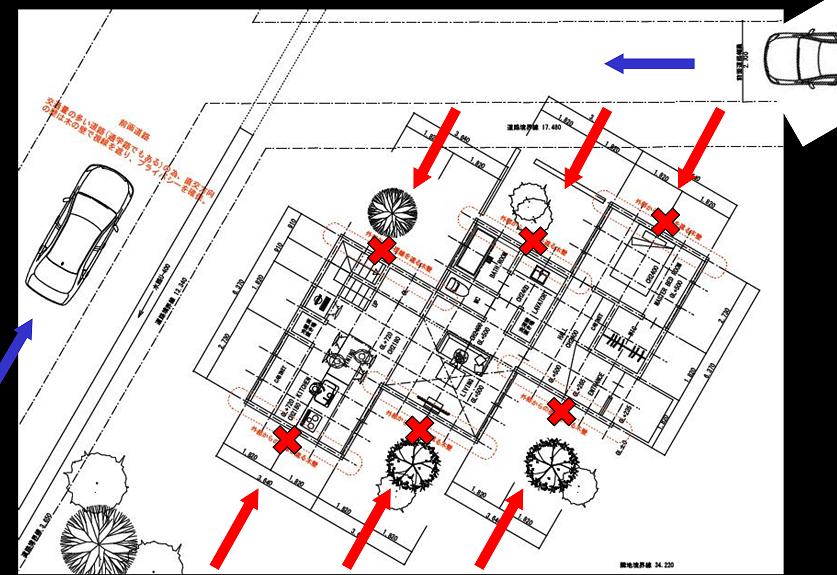
建物の敷地計画図です。
なぜこの形になったのかは一目瞭然です。
西と北道路に走る車からの目線を全て切っています。
これでプライベートは守られるというわけです。
効率の良い敷地利用
採光とホビー空間の確保
なんといっても独自スタイル
建築主の三つの要望を満たす設計デザインは?
という観点でたどり着いたプランです。
設計はKENTIXの織田さんです。
建築家、企業内建築士の設計提案力って大事ですよね。
世界に一つだけの土地への最適プランは
やはり一つしかありませんよね(^-^)/
ひょっとして、お家が3軒連なってる?
通り沿いから見てみると…
真っ黒のモニュメント?アート美術館!?
これはウラベもオドロキました( ? _ ? )
なぜ、この設計デザインになったのか
答えはこちら!
建物の敷地計画図です。
なぜこの形になったのかは一目瞭然です。
西と北道路に走る車からの目線を全て切っています。
これでプライベートは守られるというわけです。
効率の良い敷地利用
採光とホビー空間の確保
なんといっても独自スタイル
建築主の三つの要望を満たす設計デザインは?
という観点でたどり着いたプランです。
設計はKENTIXの織田さんです。
建築家、企業内建築士の設計提案力って大事ですよね。
世界に一つだけの土地への最適プランは
やはり一つしかありませんよね(^-^)/
PR
|HOME|
ステップハウス マイホーム
ホームページ:
ステップハウスとは:
ストーリーがある、岡山の住まい実現情報誌「ステップハウス マイホーム」、そして住まいの相談窓口「家づくりカウンター」(岡山市)。そのスタッフがお送りする、住まいに関するあれこれ情報ブログです。
瀬戸内にお住まいの方はもちろん、転勤やUターンの方、リタイア後に瀬戸内の海辺に住みたい方! 下記サイトもぜひご覧ください。メールはこちら。
●家づくりカウンター
●ステップハウス(中四国の住宅情報総合検索サイト)
●不動産売買アンサー「査定・売却、購入、相談の解決サイト」
●賃貸スタイル
●FM番組「ウェルカムマイホーム」
●お部屋探し応援blog岡山
●ステップハウス広島版blog
●ステップハウス香川版blog
●備後で建てる家blog
住宅相談カウンターとは?
特定のメーカーなどに属さない中立の立場で、住宅情報誌出版のノウハウとネットワークを活用して、ご希望に合う会社や商品を紹介する、新しいサービス。いわば、住まいのコンシェルジュです。
ステップハウス マイホームとは?
家づくりのノウハウから最新不動産情報まで。岡山でマイホームを実現するための月刊住宅情報誌です。詳しくはこちら。
瀬戸内にお住まいの方はもちろん、転勤やUターンの方、リタイア後に瀬戸内の海辺に住みたい方! 下記サイトもぜひご覧ください。メールはこちら。
●家づくりカウンター
●ステップハウス(中四国の住宅情報総合検索サイト)
●不動産売買アンサー「査定・売却、購入、相談の解決サイト」
●賃貸スタイル
●FM番組「ウェルカムマイホーム」
●お部屋探し応援blog岡山
●ステップハウス広島版blog
●ステップハウス香川版blog
●備後で建てる家blog
住宅相談カウンターとは?
特定のメーカーなどに属さない中立の立場で、住宅情報誌出版のノウハウとネットワークを活用して、ご希望に合う会社や商品を紹介する、新しいサービス。いわば、住まいのコンシェルジュです。
ステップハウス マイホームとは?
家づくりのノウハウから最新不動産情報まで。岡山でマイホームを実現するための月刊住宅情報誌です。詳しくはこちら。
カレンダー
| 10 | 2025/11 | 12 |
| S | M | T | W | T | F | S |
|---|---|---|---|---|---|---|
| 1 | ||||||
| 2 | 3 | 4 | 5 | 6 | 7 | 8 |
| 9 | 10 | 11 | 12 | 13 | 14 | 15 |
| 16 | 17 | 18 | 19 | 20 | 21 | 22 |
| 23 | 24 | 25 | 26 | 27 | 28 | 29 |
| 30 |
家づくり倶楽部 会員募集中
現在、または将来的にマイホーム実現を考えている方のための気軽な情報提供サービスです。家を建てる、分譲マンションや中古物件など住まい購入をお考えの方に、情報誌「ステップハウス マイホーム」や最新情報を毎月お届けします。ご登録・ご利用はもちろん無料です。
カテゴリー
最新記事
(06/11)
(06/09)
(06/04)
(06/02)
(06/01)
最新トラックバック
ブログ内検索
アクセス解析